Référence : DEVAP200002356
Calculette
Partager
PARIS XVème - VAUGIRARD - CONVENTION - 2 PIECES 37.52m²
Description de l'offre
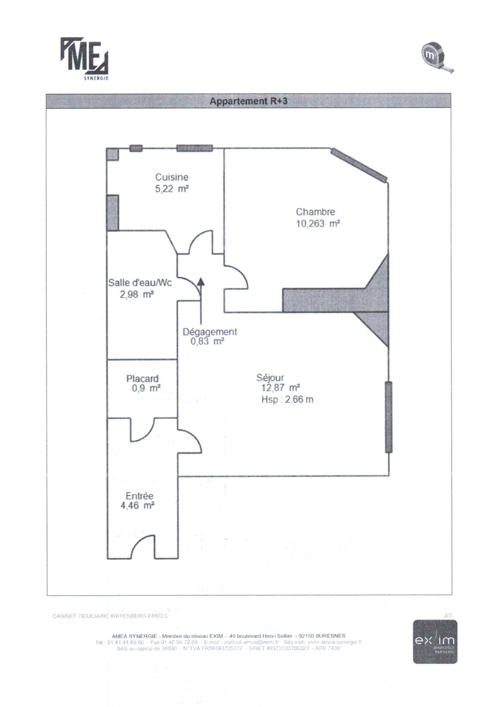
Entre Vaugirard et Convention, dans un quartier vivant, proche tous commerces et écoles, nous vous proposons Au 3ème étage sans ascenseur d'un immeuble ancien, un appartement comprenant une entrée, un séjour, un dégagement, une salle d'eau avec WC, une cuisine et une chambre. Vendu avec une cave
Descriptif du bien
- Code postal : 75015
- Surface habitable (m²) : 37,52 m²
- Surface loi Carrez (m²) : 37,52 m²
- Nombre de chambre(s) : 1
- Nombre de pièces : 2
- Etage : 3
- Ascenseur : NON
- Vue : Citadine
- Nb de salle d'eau : 1
- Cuisine : SEPAREE
- Mode de chauffage : Electrique
- Type de chauffage : Convecteur
- Format de chauffage : Individuel
- Cave : OUI
- Surface cave (m²) : 3.38
- Année de construction : 1900
- Copropriété : OUI
- Lot n° : 6
- nombre de lots : 22
- plan de sauvegarde : NON
- statut du syndic : pas de procédure en cours
- Prix de vente honoraires TTC inclus : 338 000 €
- Prix de vente honoraires TTC exclus : 322 000 €
- Honoraires TTC à la charge acquéreur : 4,97 %
Logement à consommation énergétique excessive : classe F
Montant estimé des dépenses annuelles d'énergie pour un usage standard est compris entre 1 363 € et 1 845 € . Prix moyens des énergies indexés sur les années 2021, 2022 et 2023 (abonnements compris).
La ville de Paris (75015)
Ce bien vous intéresse ?
Partager l'offre
IPF Conseils
Paris (75005)
Les informations recueillies sur ce formulaire sont enregistrées dans un fichier informatisé par La Boite Immo agissant comme Sous-traitant du traitement pour la gestion de la clientèle/prospects de l'Agence / du Réseau qui reste Responsable du Traitement de vos Données personnelles.
La base légale du traitement repose sur l'intérêt légitime de l'Agence / du Réseau.
Elles sont conservées jusqu'à demande de suppression et sont destinées à l'Agence / au Réseau.
Conformément à la loi « informatique et libertés », vous disposez des droits d’accès, de rectification, d’effacement, d’opposition, de limitation et de portabilité de vos données. Vous pouvez retirer votre consentement à tout moment en contactant directement l’Agence / Le Réseau.
Consultez le site https://cnil.fr/fr pour plus d’informations sur vos droits.
Si vous estimez, après avoir contacté l'Agence / le Réseau, que vos droits « Informatique et Libertés » ne sont pas respectés, vous pouvez adresser une réclamation à la CNIL.
Nous vous informons de l’existence de la liste d'opposition au démarchage téléphonique « Bloctel », sur laquelle vous pouvez vous inscrire ici : https://www.bloctel.gouv.fr
Dans le cadre de la protection des Données personnelles, nous vous invitons à ne pas inscrire de Données sensibles dans le champ de saisie libre.
Ce site est protégé par reCAPTCHA, les Politiques de Confidentialité et les Conditions d'Utilisation de Google s'appliquent.
